Экстерьер виллы 3
1 / 1
Экстерьер виллы 3

Подробнее о данном доме

Собственный дом в статусном коттеджном поселке на берегу Минского моря в близи городского яхт-клуба - это то, что так необходимо для уединенной загородной жизни. Это проект, в котором с самого первого эскиза проектировалось пространство для уютной жизни, где все направлено на комфорт и отдых.

Площадь дома составляет 625 м² от Miruar. В доме два этажа и полноценный эксплуатируемый цокольный этаж. Гараж, интегрированный в дом, с организованным входом с первого этажа - это существенное удобство и чистота.

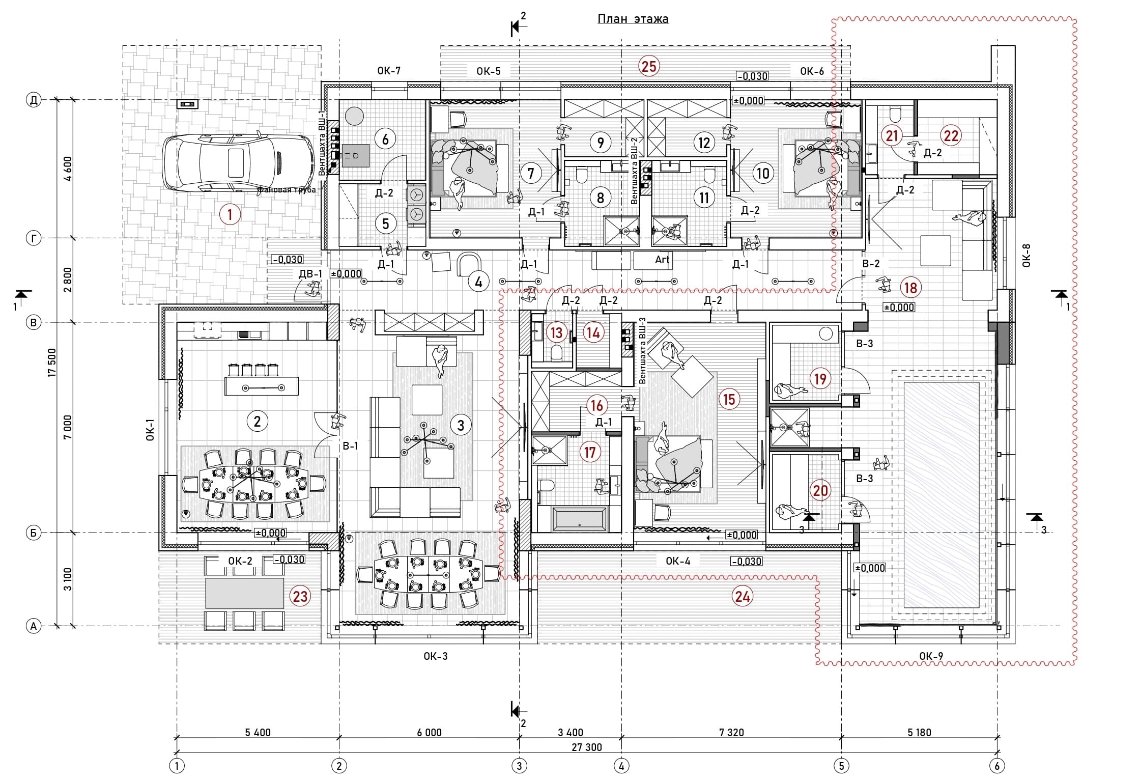
Первый этаж состоит из: гостиной, спальни с гардеробом и ванной, кухни, террасы и зоны SPA. Площадь террасы составляет 40 м² и помимо своего прямого назначения, она задает стиль всему дому и прилегающей территории. Терраса станет для вас спокойным местом для утреннего кофе или пространством для ужина. Внушительная гостиная 80 м² - центр притяжения, где с большим удовольствием собирается вся семья. Наличие на первом этаже спальной комнаты - отличное решение для отдыха, рабочего кабинета или для размещения гостей.

Продуманная до мелочей планировка второго этажа включает в себя: 4 жилые комнаты с собственными санузлами, гардеробными. Одна из спален имеет выход на просторную террасу. С нее открывается вид на пляж Минского моря, на весь коттеджный посёлок. Проводите свое личное время в спокойной и уютной атмосфере.

Эффектным элементом, который отражает современный стиль и концепцию максимального комфорта дома, является наличие окна в ванной. Теперь принятие ванны из обычной процедуры может с легкостью превратиться в расслабляющую медитацию. Ванная комната всегда будет наполнена солнечным светом и свежим воздухом.

Одним из преимуществ дома является наличие цокольного этажа, площадь которого можно использовать для решения многих бытовых и хозяйственных задач. Здесь легко могут разместиться различные помещения – место для стирки/глажки, кладовая, топочная, винный погреб.

Отличительной чертой каждой виллы является SPA зона - бассейн, хамам, тренажерный зал и сауна.

На территории участка ландшафтный дизайн, продуманный до мелочей. Здесь спланировано всё, начиная с автоматического полива газона и дренажной системы, и заканчивая декоративными элементами и освещением.

Свой особый стиль и изящество дому придает сочетание современной конструкции дома и архитектурное решение оформления фасада, с использованием бетона и дерева. В доме используется панорамное остекление. Такое архитектурное решение не только эстетично, но и практично, наполняет помещение солнечным светом и позволяет жить в гармонии с природой. Правильные геометрические формы, в отделке фасада и множество стеклянных конструкций подчеркивают индивидуальность дома.


Характеристики дома:

  • 2 этажа
  • Терраса на втором этаже
  • Гараж, имеется дополнительный вход с дома
  • Собственный участок
  • Современный цветовые решения фасада
  • Панорамное остекление
  • Ландшафтный дизайн
  • Зона барбекю
  • Бассейн
  • Сауна
  • Хамам
  • Тренажерный зал
Показать всё описание

Планировочное решение

План дома
Цоколь

Варианты отделки

Мы используем исключительно высококачественные и экологичные материалы для выполнения отделочных работ.

Мастер-спальня
Мастер-спальня
Санузел (м. спальня)
Гардероб (м. спальня)
Тренажёрный зал
Гостиная
Гостиная
Обеденная зона
Кухня
Кухня
Спальня
Спальня
СПА-зона
Хамам
Сауна
Бассейн
Бассейн
Санузел
Терраса
Терраса
Прихожая
Гардероб

Интерактивная карта тип виллы №3

Вилла 3 в MIRUAR — эксклюзивный дом с SPA-зоной, бассейном и террасой

3D тур